Jason Smith, Dale Suttle – 2009 – instructor: Hina Jamelle
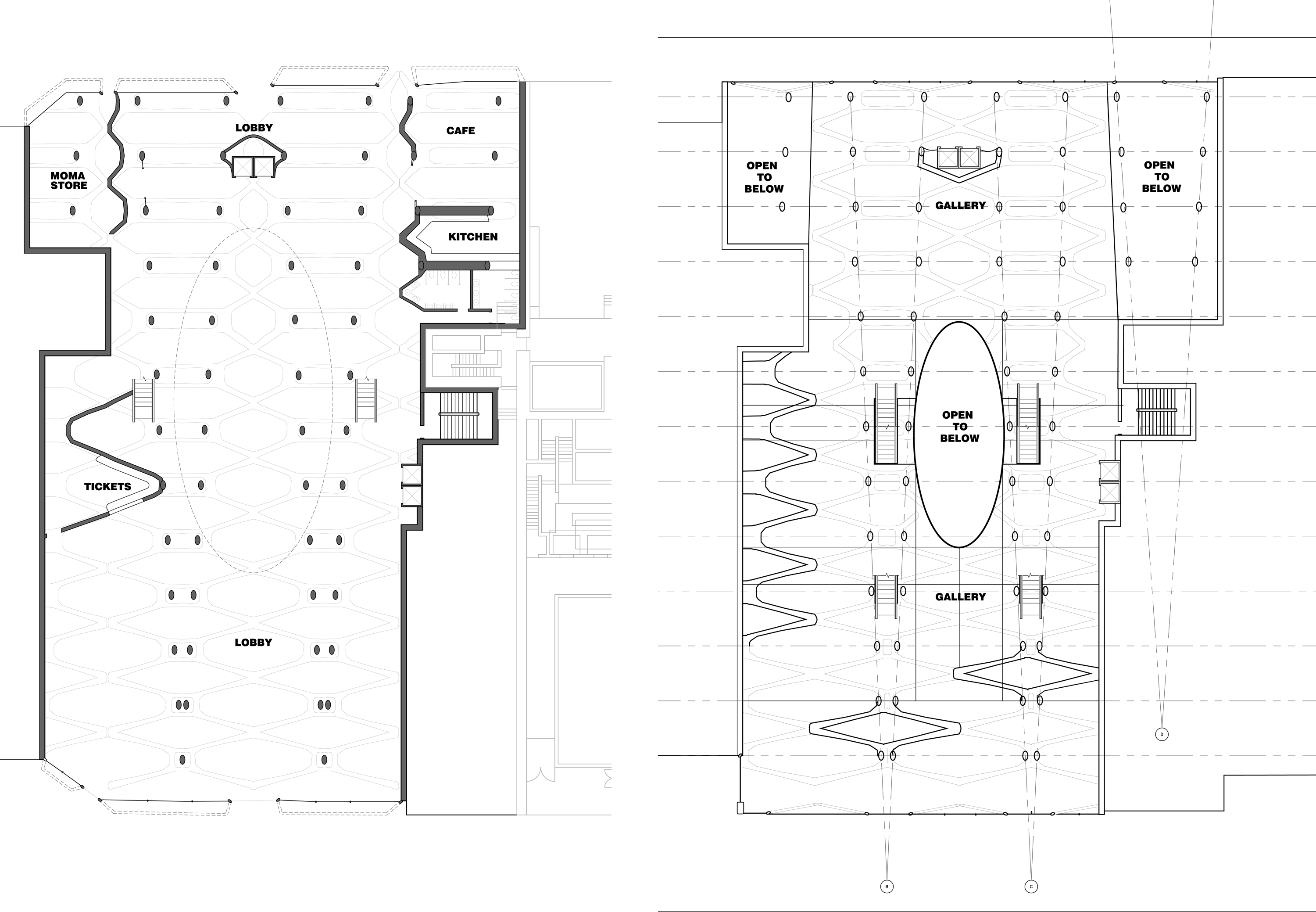
This addition to the Museum of Modern Art began with the development of a parquet deformation which serves as a diagram of the progression of spaces in the building. The parquet deformation is geometric pattern which gradually changes through small iterative changes. Each stage of the transformation informs a spatial unit with a specific structural logic. As a result, across the length of the building, the structural logic gradually changes, causing the spaces around them to expand and contract, folding into each other. In the same manner as the parquet deformation diagram, the space within the building gradually changes through consistent iterative changes. The result reads as a continuous change but allows for drastically different divisions of space in different parts of the building.








